Phân khu Athens Tây Nam Kim Giang dự án Athena Fulland

Tọa lạc giữa trung tâm giao thương sôi động, dự án Athena Fulland vẫn giữ cho khu dân cư sự yên bình nhờ phong cách thiết kế không gian thoáng mát, tận dụng tối đa mảng xanh. Athena Fulland là đại dự án đầu tiên của Vimefulland với 2 phân khu: phân khu Larissa và phân khu Athens.


Athens Tây Nam Kim Giang


Phân khu Athens nằm đối diện phân khu Larissa qua trục đường Nguyễn Xiển nối hai đầu Tây – Nam thành phố, vị trí vô cùng thuận tiện, là khu vực sầm uất bậc nhất Hà Nội, Đối diện là siêu dự án Bitexco – The Maner Central Park, Một trong những khu đô thị trọng yếu được định hướng phát triển đồng bộ với quy mô lớn nhất tại Hà Nội. Athena là quần thể đô thị đẳng cấp, với đầy đủ tất cả những tiện ích 5 sao bậc nhất như, Bể bơi tiêu chuẩn, Hầm đỗ xe thông mình, hạ tầng cây xanh có đường kính lớn... 


PHÂN KHU ATHENS TÂY NAM KIM GIANG 


Tên dự án: Athena Fulland 

Phân khu: Athens 

Đơn vị phát triển dự án: Vimefulland

Vị trí: Mặt đường Nguyễn Xiển, Thanh Xuân, Hà Nội 

Tư vấn thiết kế: Công ty TNHH NKB Archi Việt Nam. 

Tổng diện tích đất sử dụng: 18,2ha 

Loại hình sản phẩm: Shophouse, Biệt thự song lập, Biệt thự đơn 

Hình thức sở hữu: Sổ đỏ vĩnh viễn 

Thời gian bàn giao: Dự kiến Quý IV/2020.



VỊ TRÍ PHÂN KHU ATHENS TÂY NAM KIM GIANG

 

Phân Khu Athens thuộc khu đô thị mới Tây Nam Kim Giang, có diện tích đất nằm trên địa bàn quận Thanh Xuân và huyện Thanh Trì, kéo dài suốt 1,8km mặt đường Nguyễn Xiển và 1,2km mặt trục đường quy hoạch hướng tâm Tây Nam thành phố.


Athens Tây Nam Kim Giang

 

 

Nhìn trên bản đồ để xác định vị trí khu đô thị Tây Nam Kim Giang có một vị trí cực kỳ ấn tượng.

Bám theo trục đường vành đai 3 ( Nguyễn Xiển – Khuất Duy Tiến) với chiều dài 1,8km.

Cách ngã tư Nguyễn Trãi và Khuất Duy Tiến vào khoảng 500m.

Athena Tây Nam Kim Giang còn đi hướng về trung tâm thành phố rất thuận lợi

Hướng về phía Nam không xa là công viên Chu Văn An đang được gấp rút hoàn thiện để đi vào sử dụng.

Phía Đông Bắc khu đô thị giáp đường vành đai 3 đang xây dựng.

Phía Tây Bắc giáp đường quy hoạch và Khu đô thị mới Hạ Đình.

Phía Đông Nam giáp dự án trung tâm đua ngựa thể thao và phía tây nam giáp KDC xã Tân Triều.


Athens Tây Nam Kim Giang

 

 


Từ Athena Fulland, cư dân cũng có thể rút ngắn thời gian, dễ dàng di chuyển tới Trung tâm Hội nghị Quốc gia cách đó 4000m và các tỉnh lân cận phía Tây thông qua Đại lộ Thăng Long, các tỉnh phía Nam thông qua đường vành đai 3 trên cao và cao tốc hiện đại nhất trên cả nước Hà Nội – Hải Phòng.


QUY HOẠCH PHÂN KHU ATHENS TÂY NAM KIM GIANG


Phân khu Athens sẽ có hầu hết các loại sản phẩm bất động sản trên thị trường hiện nay như chung cư, biệt thự, liền kề, Shophouse.


Athens Tây Nam Kim Giang

 

 

 


 

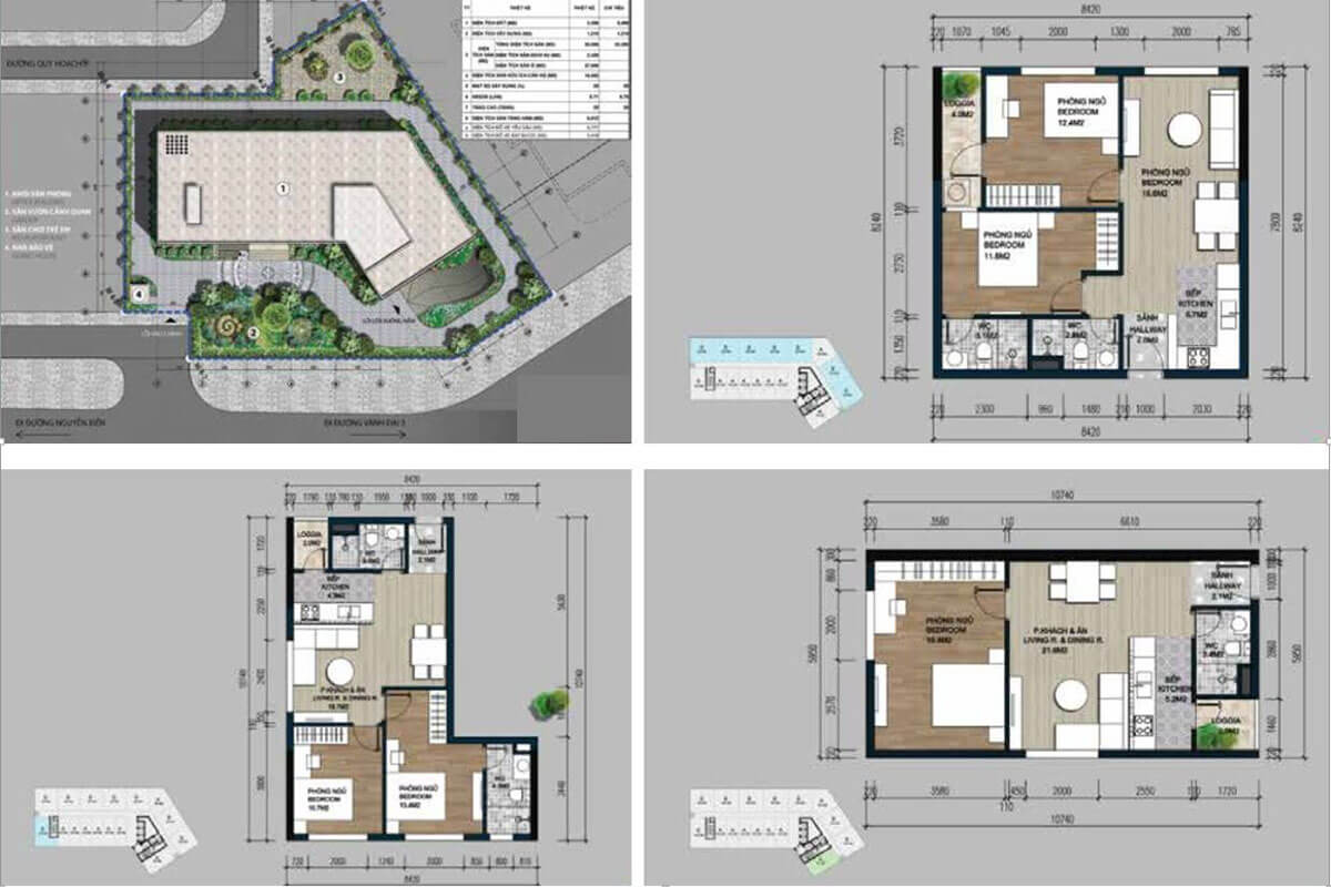
CHUNG CƯ ATHENS TÂY NAM KIM GIANG


Chung cư phân khu Athens xây dựng 4 khối chung cư cao 25 tầng, cung cấp 1282 căn hộ, với diện tích từ 69m2 đến 130m2, được thiết kế từ 2-4 phòng ngủ, theo phong cách kiến trúc đa năng thông minh, cho phép chủ nhân căn hộ, thay đổi không gian sống một cách linh hoạt, đáp ứng nhu cầu sử dụng của từng gia đình.


Athens Tây Nam Kim Giang

 

 

Mặt bằng căn hộ chung cư điển hình phân khu Athens


Athens Tây Nam Kim Giang

 

Athens Tây Nam Kim Giang

 

Athens Tây Nam Kim Giang

 

Athens Tây Nam Kim Giang

 

OFFICETEL ATHENS TÂY NAM KIM GIANG

 

Tòa Officetel phân khu Athens sở hữu một lối ra vào riêng biệt, ngay mặt đường Nguyễn Xiển, thuận tiện cho các hoạt động tiếp khách, giao dịch ngay tại căn hộ Officetel. Đồng thời, Vimefulland dành một phần diện tích mặt trước của tòa Officetel để xây dựng khu cảnh quan và tiện ích ngoài trời riêng biệt, với những con đường dạo bộ cùng hệ cây xanh rợp bóng mát, giữa những giờ làm việc căng thẳng, khách hàng tại các căn hộ Officetel có thể tìm đến khoảng vườn này để thư giãn, tĩnh tâm, tìm lại sự cân bằng cho cuộc sống.


Athens Tây Nam Kim Giang

 


Căn hộ văn phòng đa năng, được thiết kế nhỏ gọn, linh hoạt với 368 căn, với diện tích 40m2, 60m2 cho căn hộ 1 phòng ngủ, 2 phòng ngủ. Trong mỗi căn Officetel có đầy đủ phòng bếp, phòng ăn, phòng làm việc được thiết kế linh hoạt, hiện đại, tối ưu hóa công năng kép, vừa sinh hoạt, vừa làm việc. Có thể nói, đây là lựa chọn phù hợp với những người bận rộn, những đôi vợ chồng trẻ năng động, cũng là kênh đầu tư bất động sản sinh lời dài hạn, với tiềm năng cho thuê hiệu quả. 


Athens Tây Nam Kim Giang

 

 

BIỆT THỰ ĐƠN LẬP ATHENS TÂY NAM KIM GIANG

 

Biệt thự đơn lập phân khu Athens là dòng sản phẩm đặc biệt, với 4 mặt tiền, tầng 1 có chức năng dịch vụ, cư dân có thể vừa kinh doanh, vừa ở, nhưng mang đậm dấu ấn thẩm mỹ, kiến trúc của giới quý tộc Pháp.


Athens Tây Nam Kim Giang

 

 


Các căn biệt thự đơn lập được thiết kế gồm 3 tầng, 1 hầm, 1 tum, mật độ xây dựng 55%, với diện tích đất linh hoạt từ 200m2 – 300m2. Mang phong cách kiến trúc tân cổ điển Pháp, thanh lịch với nền sơn trắng muốt cùng hệ mái Mansard đen ghi cổ điển, cùng với chỗ để xe ô tô dưới tầng hầm và hai chiếc cổng đăng đối trước mặt ngôi nhà, sự sang trọng của mỗi căn biệt thự đơn lập, được tôn lên qua những điểm nhấn hoa văn mạ vàng, hệ ban công, với những trụ đèn bằng đồng trổ ra, đặc biệt là lối tam cấp ốp đá cẩm thạch, dẫn vào không gian sinh hoạt, đã được tôn lên cao, tạo cho ngôi nhà vững chãi và trường tồn.

Athens Tây Nam Kim Giang

 


Đặc biệt hơn, bao quanh 4 mặt tiền là cây xanh, tiểu cảnh tạo nên một không gian ngập tràn sắc màu thiên nhiên, một thiên đường sống an nhiên giữa lòng thủ đô náo nhiệt. Bên cạnh đó, với khoảng sân vườn rộng lớn, cư dân có thể thỏa sức sáng tạo một góc trời riêng của mình, để cuộc sống sinh thái, tràn ngập trong từng hơi thở, mà vẫn không mất đi tính thẩm mỹ trong kiến trúc.


 


Biệt thự đơn lập Athens nằm ở các khu:
HH1: Có 80 ô biệt thự nhà phố đơn lập xây 4 tầng (Diện tích đất: 200m2 – 366m2)
HH2: Có 34 ô biệt thư nhà phố đơn lập xây 4 tầng (Diện tích đất: 200m2 – 347m2)
CT2: Có 50 ô biệt thư đơn lập xây 4 tầng (Diện tích đất: 200m2 – 500m2)

 

 

Athens Tây Nam Kim Giang


BIỆT THỰ SONG LẬP ATHENS TÂY NAM KIM GIANG

 

Với khách hàng thượng lưu, loại hình biệt thự luôn là lựa chọn hàng đầu cho cuộc sống xứng tầm, trở thành niềm tự hào, định vị phong cách và khẳng định gu thẩm mỹ riêng của gia chủ. Biệt thự song lập Athena Fulland với những chi tiết cầu kỳ trong thiết kế, không gian mở giao hòa cùng thiên nhiên trong lành, đang được nhiều khách hàng lựa chọn. Biệt thự song lập gồm hai căn biệt thự đặt cạnh nhau, có thiết kế đối xứng nhau, hài hòa về màu sắc và đường nét, tạo nên một tổng thể kiến trúc hoàn mỹ. Sự cân xứng và hài hòa trong thiết kế ngoại thất, tinh tế trong từng chi tiết, thể hiện tính mỹ thuật trong kiến trúc và kỹ thuật xây dựng cầu kỳ, tạo nên các căn biệt thự song lập sang trọng và đẳng cấp. Với diện tích từ 120m2 -305m2, biệt thự song lập, đủ cho gia đình hai đến ba thế hệ cùng chung sống và tận hưởng cuộc sống đẳng cấp riêng tư.


Athens Tây Nam Kim Giang

 

 


Thêm vào đó biệt thự song lập Athena Fulland với lợi thế 3 mặt thoáng, đảm bảo không gian thoáng rộng, đủ cho các chủ nhân có được tầm nhìn tuyệt mỹ đến các khoảng thiên nhiên trong lành. Được chú trọng đến việc tạo nên các không gian mở, giao hòa với thiên nhiên, từ những vách kính rộng và ban công thoáng đãng, các căn biệt thự song lập, tạo ra một không gian sống mới mẻ, hòa mình với thiên nhiên dành cho các gia chủ. 


Athens Tây Nam Kim Giang


Đặc biệt hơn, với các khoảng không gian trống quanh biệt thự là nơi các chủ nhân thỏa sức tạo nên khu vườn tuyệt đẹp, với sân cỏ, giàn hoa, tiểu cảnh đá… mang dấu ấn riêng của mình.


 

 


Biệt thự song lập Athens nằm ở các khu:
TT1: Có 78 ô biệt thự song lập xây 5 tầng (Diện tích đất: 125m2 – 207m2)
TT2: Có 47 ô biệt thự song lập xây 5 tầng (Diện tích đất: 120m2 – 145m2)
TT3: Có 89 ô biệt thự song lập xây 5 tầng (Diện tích đất: 150m2 – 305m2)
TT4: Có 106 ô biệt thự song lập xây 5 tầng (Diện tích đất: 150m2 – 224m2)
TT5: Có 32 ô biệt thự song lập xây 5 tầng (Diện tích đất: 214m2 – 262m2)
TT7: Có 12 căn biệt thự song lập xây 5 tầng (Diện tích đất: 230m2 – 253m2)


Athens Tây Nam Kim Giang


TIỆN ÍCH PHÂN KHU ATHENS TÂY NAM KIM GIANG


Hệ thống cây xanh hai bên tuyến phố dự án Athena Fulland


Athens Tây Nam Kim Giang


Rừng thông dọc khu vườn dạo, bao quanh vườn đọc sách vườn BBQ Dự án Athena fulland


Athens Tây Nam Kim Giang


Tiện ích bể bơi, quảng trường nước Dự án Athena fulland


Athens Tây Nam Kim Giang


Tiện ích nội khu, hệ thống lọc nước, hệ thống xử lý nước thải AO của Nhật Bản, quy trình xử lý rác thải

 

 

Athens Tây Nam Kim Giang


Bãi đỗ xe thông minh, thang máy Schindler, sảnh đón khách và sinh hoạt chung


Athens Tây Nam Kim Giang


Trường mẫu giáo, phòng tập thể hình, dịch vụ spa


Athens Tây Nam Kim Giang


Đơn vị quản lý, giám sát thi công dự án, hệ thống an ninh 24/24, hệ thống quản lý theo tiêu chuẩn Savills Việt Nam. 


Athens Tây Nam Kim Giang

 

Đăng ký mua dự án Athena Fulland liên hệ:

Ban quản lý dự án- Hotline: : 0973 366 255

This website was created for free with Own-Free-Website.com. Would you also like to have your own website?
Sign up for free